立磨(球磨)二次超細分級
超細粉碎設備粉碎物料后得到的超細粉體處于較大的粒度分布范圍,需要及時對粉體分級以得到合格產品。氣流分級機是利用葉輪產生的強離心力將不同粒徑的顆粒分級的一種干式分級設備,具有結構簡單、分級效果好、造價低等特點,在粉體加工領城有廣泛應用。
60秒人工響應
30分鐘給予技術答復
24小時免費定制方案
在立磨(球磨)二次超細分級行業,濰坊帕爾曼粉體為您定制立磨(球磨)二次超細分級的粉碎、分級等成套解決方案:
在超細粉體制備過程中要對產品進行分級,一方面控制產品粒度處于所需的分布范圍,另一方面使混合物料中粒度已達到要求的產品及時分離出來,使粗粒返回再粉碎,以提高粉碎效率降低能耗。
帕爾曼提供的生產線滿足以下要求
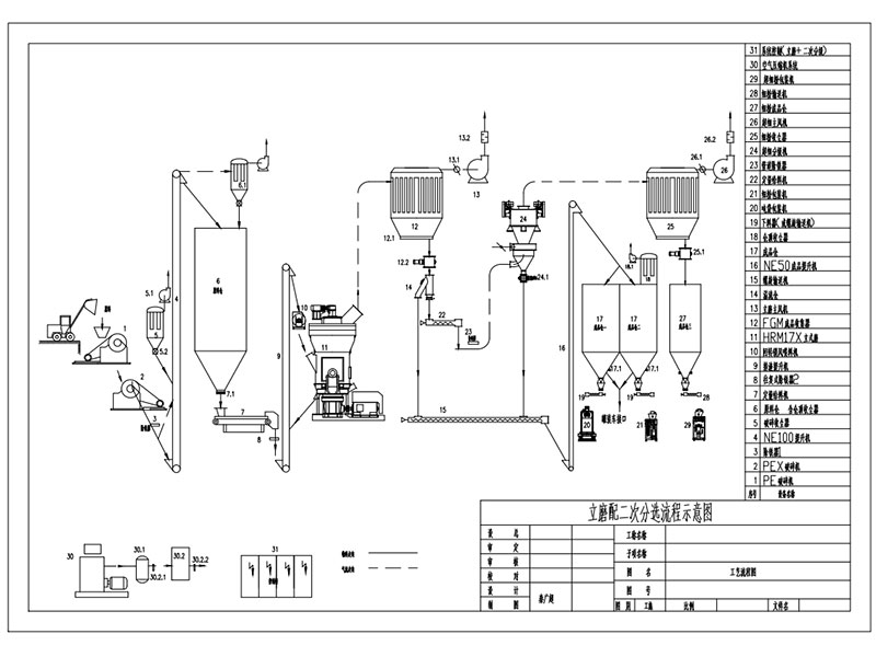
工藝流程圖

立磨二次超細分級流程圖

球磨二次超細分級流程圖
免費預約考察現場可在線咨詢免費預約考察現場或設計配置方案
在線咨詢
在線留言您也可以在下面給我們留言,我們將熱忱為您服務!
- 01丨留言咨詢
- 02丨等待5分鐘回訪
- 03丨免費定制及報價
定制服務流程
更多型號也可聯系我們,支持定制
-
咨詢客服
您只需要一個電話
剩下的交給我們
立即咨詢
-
了解需求
銷售團隊與您詳談
告訴我們您的需求
提供需求
-
規劃設計
專業工程師根據您的
需求給出合理的方案
獲取方案
-
生產制造
我們會在合理的時間內
保質保量完成
預定設備
-
技術安裝
專業安裝團隊現場安裝
調試至穩定投產
技術支持
-
后期維護
后期有任何問題都可
與售后工程師聯系
聯系我們